分水嶺ドットJP

  今日は


前月

2019年2月

次月

1 2
3 4 5 6 7 8 9
10 11 12 13 14 15 16
17 18 19 20 21 22 23
24 25 26 27 28

 

全日記一覧表

一番新しい日記へ

2019年2月

7日(木) 壁取合
3日(日) サミットストア
2日(土) 富士山
1日(金) Bolex L8

 

2019年1月

31日(木) デジカメのショット数確認
29日(火) Meopta Admira 8E
28日(月) 確定申告
27日(日) チェコの8ミリカメラ
26日(土) 富士山
24日(木) Bolex C8S
22日(火) ごみ箱談義
21日(月) 富士川と富士山
19日(土) ボレックス Bolex L8 と C8S
18日(金) P-3C 哨戒機
17日(木) やりすぎ失敗かと思いきや
16日(水) 苦み成分
15日(火) 焼きリンゴ
14日(月) 耐久消費財リスト更新
13日(日) ジャム工房
12日(土) 奇跡のフィルモ B&H 70-DR
11日(金) ヤシカT3
10日(木) 16ミリカメラ
9日(水) 久しぶりヤフオク
8日(火) 児童遊園地
7日(月) ドトールコーヒー
6日(日) 丘の上にカフェ
5日(土) 図書館年始開館
4日(金) Lマウント
3日(木) 明日から運動
2日(水) 富士山

 

2018年12月

31日(月) 富士山
30日(日) チェンバロ
29日(土) 紅白餅
28日(金) 年末のコンテナクレーン
26日(水) ビーフシチュー
25日(火) 調達材料
24日(月) クリスマスボウル3連覇
23日(日) バルカン化
22日(土) 冬至
21日(金) 1日早い
20日(木) 新刊本・保土ヶ谷図書館
18日(火) 歯の定期ケア
16日(日) 喜歌劇「こうもり」
14日(金) 北西の山々
12日(水) カルテ
5日(水) ドコモメール (ブラウザ版)
3日(月) アドレス帳
2日(日) 逆転さよならツーベース
1日(土) 電子メール

 

2018年11月

29日(木) 高校同期会
28日(水) そーら来た! 詐欺葉書
26日(月) ついでの大腸がん検査
25日(日) 大学アメリカンフットボール
24日(土) 七五三
23日(金) 新刊図書
21日(水) 大学アメリカンフットボール
17日(土) フィードバック回路
16日(金) プロテスタンティズム
15日(木) ローパスフィルター掃除
13日(火) テレビ用ワイヤレスヘッドホン
8日(木) 腕時計電池交換
7日(水) ウォーキング 早渕川
5日(月) ケルト音楽
4日(日) フルートの肖像
2日(金) ジャーマンポテト・焼き鳥
1日(木) バロック音楽書

   

 

前の記事 サミットストア

次の記事 帝国航路

2019年2月7日 (木)

更新

壁取合



 

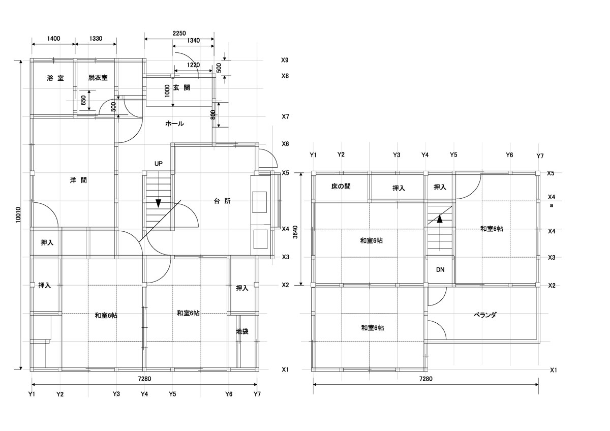
住宅模型「吹田の家」の制作作業は今日までにすべての壁の展開図の作成を完了した。 1階部分が11枚、2階部分が8枚 合計 19枚になった。

 

 

 

前回の「豊中の家」の制作では、X軸面とY軸面が交差する部分の柱をどちらの面に含めるかを事前に決定して確認することを怠っていたので、ある部分でダブってしまって後で組立作業の時に片方を切り落としたり、逆に足りなくて後で急遽組立の時に追加して寸法精度を落としたりなどした経験から、今回は下のような壁取り合い図を作成して万全を期すことにした。

 

 

 



 

前の記事 サミットストア

次の記事 帝国航路

ページトップへ戻る